Property type: office Offer type: lease
/images/galeria/2445/zrodlowy-1.jpg
map view
street view

Make an enquiry
Call us on 48 22 820 20 20
write an email office@remobile.pl

location

Bydgoszcz, ul. Fordońska 74

Costs

Rent 35.00 - 50.00 zł / m2 / month
Service charge 9.00 zł / m2 / month

Asking lease terms

Asking rent for office space 35.00 - 50.00 zł / m2
Service charge 9.00 zł / m2
Surface parking rent to be agreed
Underground parking rent to be agreed

Currently available areas

Total available office area 45 m2
Minimum office space to let to be agreed
Minimum lease term to be agreed
Building add-on factor to be agreed

Building details

Building status existing
Total net office space 6 500 m2
Building completion date 1 2016
Above-ground floors 6 (ground floor included)
Underground floors 0
Typical floor size to be agreed
Number of surface parking spaces 700
Number of underground parking spaces to be agreed
Ecological Certificate -
Parking ratio to be agreed

Standard fit-out

internal blinds
sprinklers
backup power supply
access control
telephone cabling
computer cabling
power cabling
switchboard
air-conditioning
smoke/heat detectors
raised floor
suspended ceiling
carpeting
openable windows
fibre optic connection
partition walls
BMS

Space available

Contact us

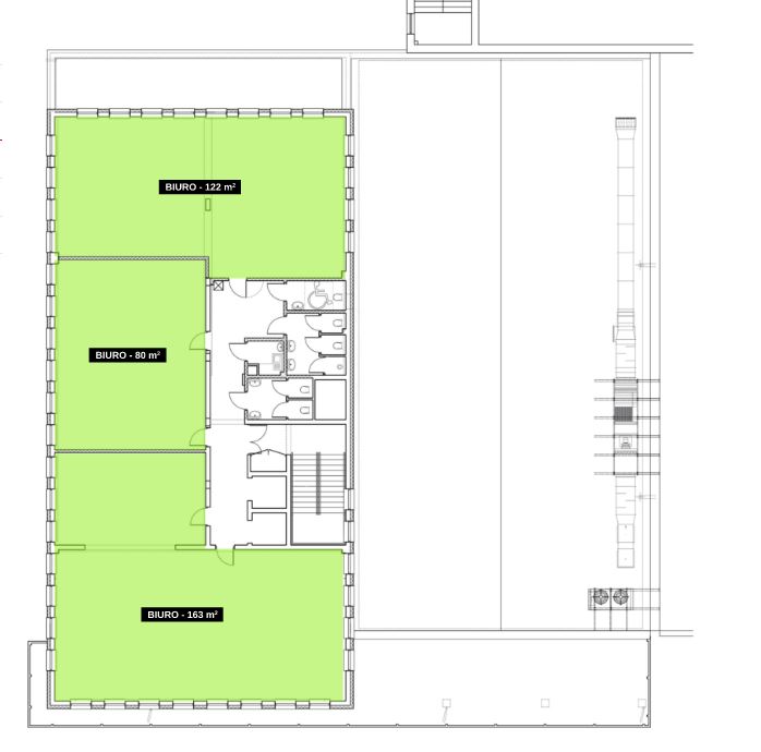
Typical floor plan

Don't have time for searching? Contact us

Calculate total occupancy costs

taking into consideration head count and workplace strategy in over 160 markets

occupiermetrics.com