Property type: office Offer type: lease
/images/galeria/1902/zrodlowy-1.jpg
/images/galeria/1902/zrodlowy-2.jpg
map view
street view

Make an enquiry
Call us on 48 22 820 20 20
write an email office@remobile.pl

location

Kraków, ul. Filipa św. 4

Costs

Rent 17.00 - 22.00 € / m2 / month
Service charge to be agreed

Asking lease terms

Asking rent for office space 17.00 - 22.00 € / m2
Asking rent for retail space 29.00 € / m2
Asking rent for industrial space 14.00 € / m2
Service charge to be agreed
Surface parking rent 0.00 zł / place
Underground parking rent 0.00 zł / place

Currently available areas

Total available office area 681 m2
Total available retail area 125 m2
Total available industrial area 143 m2
Minimum office space to let 120 m2
Minimum lease term 60 months
Building add-on factor to be agreed

Building details

Building status existing
Total net office space 833 m2
Building completion date 8 2017
Above-ground floors 6 (ground floor included)
Underground floors 1
Typical floor size 152 m2
Number of surface parking spaces 0
Number of underground parking spaces 0
Ecological Certificate -
Parking ratio 1 place per 0 m2 of the leased space

Standard fit-out

internal blinds
sprinklers
backup power supply
access control
telephone cabling
computer cabling
power cabling
switchboard
air-conditioning
smoke/heat detectors
raised floor
suspended ceiling
carpeting
openable windows
fibre optic connection
partition walls
BMS

Space available

Contact us

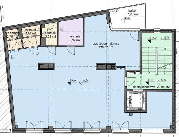
Typical floor plan

Don't have time for searching? Contact us

Calculate total occupancy costs

taking into consideration head count and workplace strategy in over 160 markets

occupiermetrics.com