Property type: office Offer type: lease
/images/galeria/899/biuro-real_office-1org.jpg
map view
street view

Make an enquiry
Call us on 48 22 820 20 20
write an email office@remobile.pl

location

Łódź, ul. Traktorowa 128

Costs

Rent 46.00 zł / m2 / month
Service charge 19.52 zł / m2 / month

Asking lease terms

Asking rent for office space 46.00 zł / m2
Service charge 19.52 zł / m2
Surface parking rent 250.00 zł / place
Underground parking rent to be agreed

Currently available areas

Total available office area 63 m2
Minimum office space to let 49 m2
Minimum lease term 12 months
Building add-on factor to be agreed

Building details

Building status existing
Total net office space 3 900 m2
Building completion date III 2011
Above-ground floors 9 (ground floor included)
Underground floors 1
Typical floor size 250 - 590 m2
Number of surface parking spaces 63
Number of underground parking spaces 0
Ecological Certificate -
Parking ratio to be agreed

Standard fit-out

internal blinds
sprinklers
backup power supply
access control
telephone cabling
computer cabling
power cabling
switchboard
air-conditioning
smoke/heat detectors
raised floor
suspended ceiling
carpeting
openable windows
fibre optic connection
partition walls
BMS

Space available

Contact us

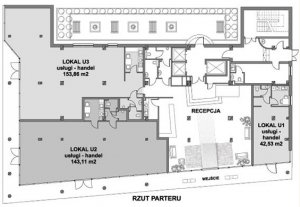
Typical floor plan

Don't have time for searching? Contact us

Calculate total occupancy costs

taking into consideration head count and workplace strategy in over 160 markets

occupiermetrics.com