Property type: office Offer type: lease
/images/galeria/938/biuro-mazowiecka_office-1org.jpg
map view
street view

Make an enquiry
Call us on 48 22 820 20 20
write an email office@remobile.pl

location

Szczecin, ul. Mazowiecka 13 B

Costs

Rent to be agreed
Service charge to be agreed

Asking lease terms

Asking rent for office space to be agreed
Service charge to be agreed
Surface parking rent to be agreed
Underground parking rent to be agreed

Currently available areas

Total available office area 0 m2
Minimum office space to let 0 m2
Minimum lease term 0 months
Building add-on factor 0.00 %

Building details

Building status existing
Total net office space 1 082 m2
Building completion date 10 2009
Above-ground floors 4 (ground floor included)
Underground floors 1
Typical floor size 169 - 206 m2
Number of surface parking spaces 16
Number of underground parking spaces 9
Ecological Certificate -
Parking ratio 1 place per 0 m2 of the leased space

Standard fit-out

internal blinds
sprinklers
backup power supply
access control
telephone cabling
computer cabling
power cabling
switchboard
air-conditioning
smoke/heat detectors
raised floor
suspended ceiling
carpeting
openable windows
fibre optic connection
partition walls
BMS

Space available

Contact us

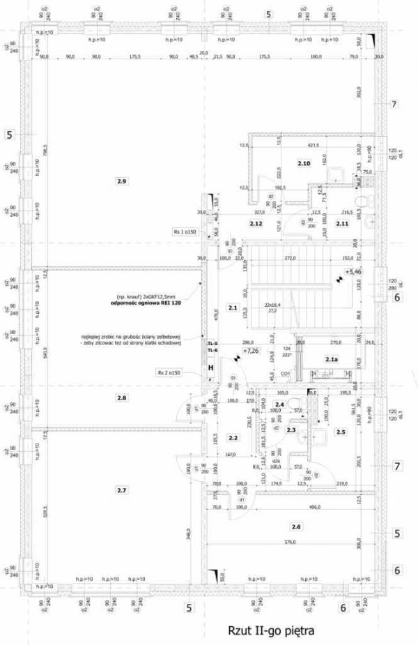
Typical floor plan

Don't have time for searching? Contact us

Calculate total occupancy costs

taking into consideration head count and workplace strategy in over 160 markets

occupiermetrics.com