Property type: office Offer type: lease
/images/galeria/2532/zrodlowy-1.jpg
map view
street view

Make an enquiry
Call us on 48 22 820 20 20
write an email office@remobile.pl

location

Warszawa, ul. Hrubieszowska 2

Costs

Rent to be agreed
Service charge 25.00 zł / m2 / month

Asking lease terms

Asking rent for office space to be agreed
Service charge 25.00 zł / m2
Surface parking rent to be agreed
Underground parking rent 150.00 € / place

Currently available areas

Total available office area 940 m2
Minimum office space to let to be agreed
Minimum lease term 36 months
Building add-on factor to be agreed

Building details

Building status existing
Total net office space 8 386 m2
Building completion date 2004
Above-ground floors 12 (ground floor included)
Underground floors 2
Typical floor size to be agreed
Number of surface parking spaces to be agreed
Number of underground parking spaces 10
Ecological Certificate -
Parking ratio to be agreed

Standard fit-out

internal blinds
sprinklers
backup power supply
access control
telephone cabling
computer cabling
power cabling
switchboard
air-conditioning
smoke/heat detectors
raised floor
suspended ceiling
carpeting
openable windows
fibre optic connection
partition walls
BMS

Space available

Contact us

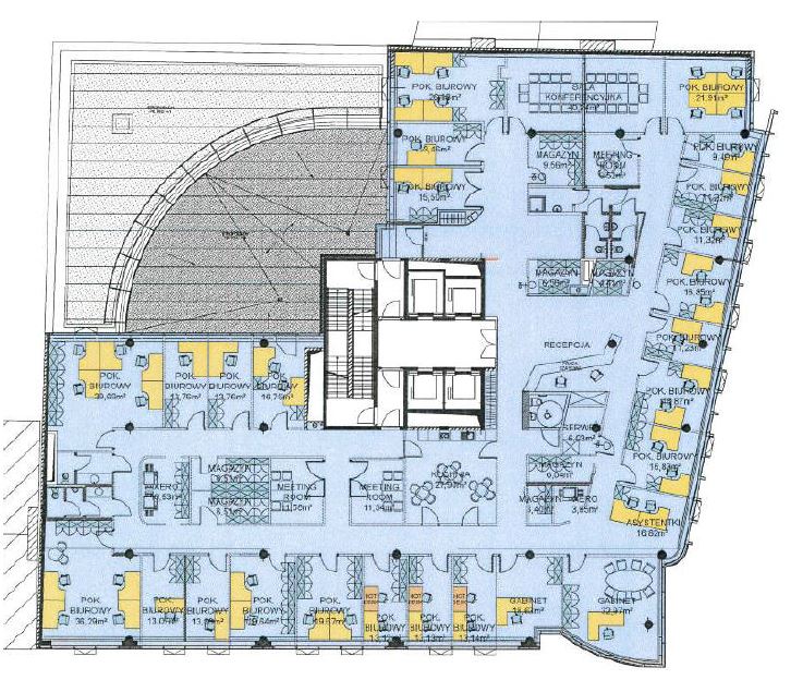
Typical floor plan

Don't have time for searching? Contact us

Calculate total occupancy costs

taking into consideration head count and workplace strategy in over 160 markets

occupiermetrics.com