Property type: office Offer type: lease
/images/galeria/598/biuro-vipol_plaza_i-2org.jpg
map view
street view

Make an enquiry
Call us on 48 22 820 20 20
write an email office@remobile.pl

location

Warszawa, ul. Młynarska 48

Costs

Rent 55.00 zł / m2 / month
Service charge 19.00 zł / m2 / month

Asking lease terms

Asking rent for office space 55.00 zł / m2
Service charge 19.00 zł / m2
Surface parking rent 199.00 zł / place
Underground parking rent 399.00 zł / place

Currently available areas

Total available office area 0 m2
Minimum office space to let 132 m2
Minimum lease term 36 months
Building add-on factor 9.00 %

Building details

Building status existing
Total net office space to be agreed
Building completion date 2001
Above-ground floors 6 (ground floor included)
Underground floors 1
Typical floor size 440 m2
Number of surface parking spaces 200
Number of underground parking spaces 10
Ecological Certificate -
Parking ratio 1 place per 30 m2 of the leased space

Standard fit-out

internal blinds
sprinklers
backup power supply
access control
telephone cabling
computer cabling
power cabling
switchboard
air-conditioning
smoke/heat detectors
raised floor
suspended ceiling
carpeting
openable windows
fibre optic connection
partition walls
BMS

Space available

Contact us

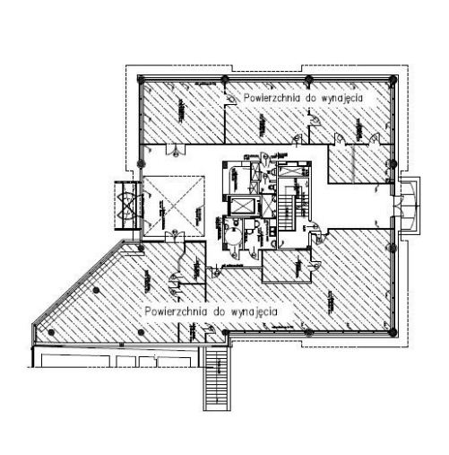
Typical floor plan

Don't have time for searching? Contact us

Calculate total occupancy costs

taking into consideration head count and workplace strategy in over 160 markets

occupiermetrics.com