Rodzaj nieruchomości: biuro Rodzaj oferty: wynajem
/images/galeria/1984/zrodlowy-1.png
widok mapy
widok ulicy

Zapytaj o tę nieruchomość
Zadzwoń 48 22 820 20 20

lokalizacja nieruchomości

Gdańsk, ul. Heweliusza Jana 18

Koszty

Czynsz do uzgodnienia
Eksploatacja 16.00 zł / m2 / mc

Wyjściowe warunki najmu

Czynsz wyjściowy za pow. biurową do uzgodnienia
Koszty eksploatacyjne 16.00 zł / m2
Koszt parkingu naziemnego do uzgodnienia
Koszt parkingu podziemnego do uzgodnienia

Dostępne powierzchnie

Całkowita dostępna pow. biurowa 0 m2
Minimalna biurowa pow. najmu do uzgodnienia
Minimalny okres najmu 60 miesięcy
Budynkowy współczynnik pow. wspólnych 6.03 %

Informacje o budynku

Status budynku istniejący
Całkowita pow. biurowa netto 10 000 m2
Data zakończenia budowy II 2018
Liczba pięter naziemnych 10 (łącznie z parterem)
Liczba pięter podziemnych 2
Powierzchnia typowego piętra 1 030 m2
Liczba miejsc parkingowych naziemnych do uzgodnienia
Liczba miejsc parkingowych podziemnych 72
Certyfikat Ekologiczny -
Wsp. miejsc parkingowych 1 miejsce na 139 m2 powierzchni

Standard wykończeń

żaluzje wewnętrzne
tryskacze
podwójne zasilanie
kontrola dostępu
okablowanie telefoniczne
okablowanie komputerowe
okablowanie elektryczne
centrala telefoniczna
klimatyzacja
czujniki dymu i ciepła
podnoszone podłogi
podwieszane sufity
wykładziny
otwierane okna
łącze światłowodowe
ścianki działowe
BMS

Dostępne powierzchnie

Skontaktuj się z nami

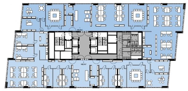
Plan typowego piętra

Nie masz czasu szukać? Skontaktuj się z nami

Oblicz łączne koszty wynajmu

Biorąc pod uwagę liczbę pracowników oraz aranżację stanowisk pracy

occupiermetrics.com