Rodzaj nieruchomości: biuro Rodzaj oferty: wynajem
/images/galeria/2847/zrodlowy-1.png
widok mapy
widok ulicy

Zapytaj o tę nieruchomość
Zadzwoń 48 22 820 20 20

lokalizacja nieruchomości

Katowice, ul. Ściegiennego ks.

Koszty

Czynsz 13.50 € / m2 / mc
Eksploatacja 16.00 zł / m2 / mc

Wyjściowe warunki najmu

Czynsz wyjściowy za pow. biurową 13.50 € / m2
Koszty eksploatacyjne 16.00 zł / m2
Koszt parkingu naziemnego do uzgodnienia
Koszt parkingu podziemnego do uzgodnienia

Dostępne powierzchnie

Całkowita dostępna pow. biurowa 1 320 m2
Minimalna biurowa pow. najmu do uzgodnienia
Minimalny okres najmu 60 miesięcy
Budynkowy współczynnik pow. wspólnych do uzgodnienia

Informacje o budynku

Status budynku w budowie
Całkowita pow. biurowa netto 1 773 m2
Całkowita pow. biurowa brutto 1 994 m2
Data zakończenia budowy IV 2020
Liczba pięter naziemnych 6 (łącznie z parterem)
Liczba pięter podziemnych 1
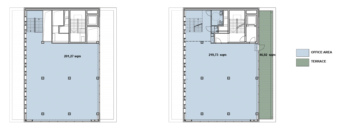
Powierzchnia typowego piętra 220 m2
Liczba miejsc parkingowych naziemnych do uzgodnienia
Liczba miejsc parkingowych podziemnych do uzgodnienia
Certyfikat Ekologiczny BREEAM - nie
Wsp. miejsc parkingowych do uzgodnienia

Standard wykończeń

żaluzje wewnętrzne
tryskacze
podwójne zasilanie
kontrola dostępu
okablowanie telefoniczne
okablowanie komputerowe
okablowanie elektryczne
centrala telefoniczna
klimatyzacja
czujniki dymu i ciepła
podnoszone podłogi
podwieszane sufity
wykładziny
otwierane okna
łącze światłowodowe
ścianki działowe
BMS

Dostępne powierzchnie

Skontaktuj się z nami

Plan typowego piętra

Nie masz czasu szukać? Skontaktuj się z nami

Oblicz łączne koszty wynajmu

Biorąc pod uwagę liczbę pracowników oraz aranżację stanowisk pracy

occupiermetrics.com