Rodzaj nieruchomości: biuro Rodzaj oferty: wynajem
/images/galeria/386/biuro-vinci_office_center-1org.jpg
widok mapy
widok ulicy

Zapytaj o tę nieruchomość
Zadzwoń 48 22 820 20 20

lokalizacja nieruchomości

Kraków, ul. Opolska 100

Koszty

Czynsz 13.00 - 14.00 € / m2 / mc
Eksploatacja 20.95 zł / m2 / mc

Wyjściowe warunki najmu

Czynsz wyjściowy za pow. biurową 13.00 - 14.00 € / m2
Koszty eksploatacyjne 20.95 zł / m2
Koszt parkingu naziemnego 45.00 € / miejsce
Koszt parkingu podziemnego 95.00 € / miejsce

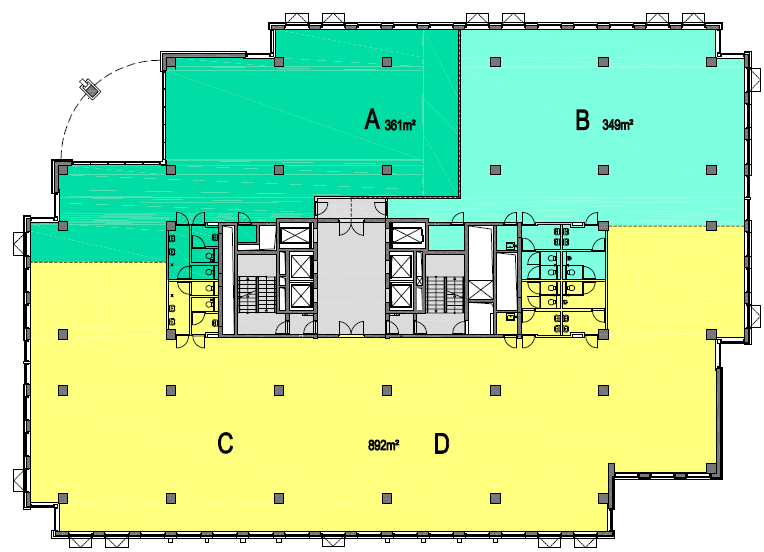
Dostępne powierzchnie

Całkowita dostępna pow. biurowa 5 027 m2
Minimalna biurowa pow. najmu 355 m2
Minimalny okres najmu 36 miesięcy
Budynkowy współczynnik pow. wspólnych 7.90 %

Informacje o budynku

Status budynku istniejący
Całkowita pow. biurowa netto 17 877 m2
Data zakończenia budowy 3 2010
Liczba pięter naziemnych 12 (łącznie z parterem)
Liczba pięter podziemnych 2
Powierzchnia typowego piętra 1 650 m2
Liczba miejsc parkingowych naziemnych 119
Liczba miejsc parkingowych podziemnych 124
Certyfikat Ekologiczny -
Wsp. miejsc parkingowych 1 miejsce na 75 m2 powierzchni

Standard wykończeń

żaluzje wewnętrzne
tryskacze
podwójne zasilanie
kontrola dostępu
okablowanie telefoniczne
okablowanie komputerowe
okablowanie elektryczne
centrala telefoniczna
klimatyzacja
czujniki dymu i ciepła
podnoszone podłogi
podwieszane sufity
wykładziny
otwierane okna
łącze światłowodowe
ścianki działowe
BMS

Dostępne powierzchnie

Skontaktuj się z nami

Plan typowego piętra

Nie masz czasu szukać? Skontaktuj się z nami

Oblicz łączne koszty wynajmu

Biorąc pod uwagę liczbę pracowników oraz aranżację stanowisk pracy

occupiermetrics.com