Rodzaj nieruchomości: biuro Rodzaj oferty: wynajem
/images/galeria/3069/zrodlowy-1.png
widok mapy
widok ulicy

Zapytaj o tę nieruchomość
Zadzwoń 48 22 820 20 20

lokalizacja nieruchomości

Łódź, al. Piłsudskiego marsz. Józefa 22

Koszty

Czynsz do uzgodnienia
Eksploatacja do uzgodnienia

Wyjściowe warunki najmu

Czynsz wyjściowy za pow. biurową do uzgodnienia
Koszty eksploatacyjne do uzgodnienia
Koszt parkingu naziemnego do uzgodnienia
Koszt parkingu podziemnego do uzgodnienia

Dostępne powierzchnie

Całkowita dostępna pow. biurowa 722 m2
Minimalna biurowa pow. najmu 722 m2
Minimalny okres najmu do uzgodnienia
Budynkowy współczynnik pow. wspólnych 6.00 %

Informacje o budynku

Status budynku istniejący
Całkowita pow. biurowa netto 5 985 m2
Data zakończenia budowy 2006
Liczba pięter naziemnych 4 (łącznie z parterem)
Liczba pięter podziemnych 0
Powierzchnia typowego piętra 740 m2
Liczba miejsc parkingowych naziemnych do uzgodnienia
Liczba miejsc parkingowych podziemnych do uzgodnienia
Certyfikat Ekologiczny -
Wsp. miejsc parkingowych 1 miejsce na 45 m2 powierzchni

Standard wykończeń

żaluzje wewnętrzne
tryskacze
podwójne zasilanie
kontrola dostępu
okablowanie telefoniczne
okablowanie komputerowe
okablowanie elektryczne
centrala telefoniczna
klimatyzacja
czujniki dymu i ciepła
podnoszone podłogi
podwieszane sufity
wykładziny
otwierane okna
łącze światłowodowe
ścianki działowe
BMS

Dostępne powierzchnie

Skontaktuj się z nami

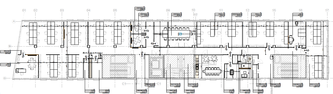
Plan typowego piętra

Nie masz czasu szukać? Skontaktuj się z nami

Oblicz łączne koszty wynajmu

Biorąc pod uwagę liczbę pracowników oraz aranżację stanowisk pracy

occupiermetrics.com