Rodzaj nieruchomości: biuro Rodzaj oferty: wynajem
/images/galeria/1016/zrodlowy-1.jpg
widok mapy
widok ulicy

Zapytaj o tę nieruchomość
Zadzwoń 48 22 820 20 20

lokalizacja nieruchomości

Warszawa, ul. Chmielna 25

Koszty

Czynsz 21.75 - 22.00 € / m2 / mc
Eksploatacja 28.00 zł / m2 / mc

Wyjściowe warunki najmu

Czynsz wyjściowy za pow. biurową 21.75 - 22.00 € / m2
Czynsz wyjściowy za pow. handlową do uzgodnienia
Koszty eksploatacyjne 28.00 zł / m2
Koszt parkingu naziemnego do uzgodnienia
Koszt parkingu podziemnego 195.00 € / miejsce

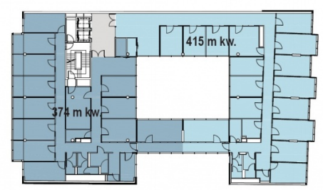
Dostępne powierzchnie

Całkowita dostępna pow. biurowa 2 779 m2
Całkowita dostępna pow. handlowa 1 642 m2
Minimalna biurowa pow. najmu 289 m2
Minimalny okres najmu 36 miesięcy
Budynkowy współczynnik pow. wspólnych 9.05 %

Informacje o budynku

Status budynku istniejący
Całkowita pow. biurowa netto 3 800 m2
Data zakończenia budowy 10 2013
Liczba pięter naziemnych 7 (łącznie z parterem)
Liczba pięter podziemnych 2
Powierzchnia typowego piętra 800 m2
Liczba miejsc parkingowych naziemnych 0
Liczba miejsc parkingowych podziemnych 25
Certyfikat Ekologiczny LEED - Gold
Wsp. miejsc parkingowych do uzgodnienia

Standard wykończeń

żaluzje wewnętrzne
tryskacze
podwójne zasilanie
kontrola dostępu
okablowanie telefoniczne
okablowanie komputerowe
okablowanie elektryczne
centrala telefoniczna
klimatyzacja
czujniki dymu i ciepła
podnoszone podłogi
podwieszane sufity
wykładziny
otwierane okna
łącze światłowodowe
ścianki działowe
BMS

Dostępne powierzchnie

Skontaktuj się z nami

Plan typowego piętra

Nie masz czasu szukać? Skontaktuj się z nami

Oblicz łączne koszty wynajmu

Biorąc pod uwagę liczbę pracowników oraz aranżację stanowisk pracy

occupiermetrics.com