Rodzaj nieruchomości: biuro Rodzaj oferty: wynajem
/images/galeria/146/zrodlowy-6.jpg
/images/galeria/146/zrodlowy-7.jpg
/images/galeria/146/zrodlowy-8.jpg
/images/galeria/146/zrodlowy-9.jpg
/images/galeria/146/zrodlowy-10.jpg
widok mapy
widok ulicy

Zapytaj o tę nieruchomość
Zadzwoń 48 22 820 20 20

lokalizacja nieruchomości

Warszawa, ul. Złota 59 A

Koszty

Czynsz 22.00 € / m2 / mc
Eksploatacja 39.90 zł / m2 / mc

Wyjściowe warunki najmu

Czynsz wyjściowy za pow. biurową 22.00 € / m2
Koszty eksploatacyjne 39.90 zł / m2
Koszt parkingu naziemnego do uzgodnienia
Koszt parkingu podziemnego 180.00 € / miejsce

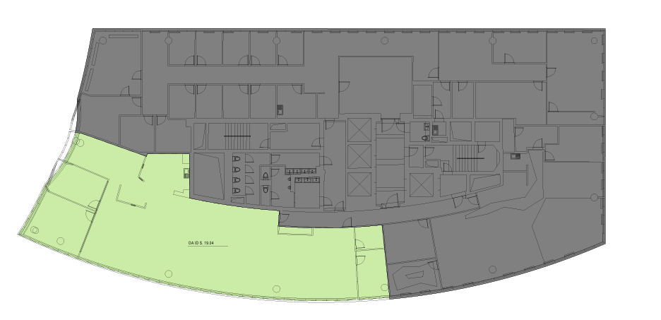
Dostępne powierzchnie

Całkowita dostępna pow. biurowa 1 764 m2
Minimalna biurowa pow. najmu 244 m2
Minimalny okres najmu do uzgodnienia
Budynkowy współczynnik pow. wspólnych 6.20 %

Informacje o budynku

Status budynku istniejący
Całkowita pow. biurowa netto 19 500 m2
Całkowita pow. biurowa brutto 21 500 m2
Data zakończenia budowy 2007
Liczba pięter naziemnych 19 (łącznie z parterem)
Liczba pięter podziemnych 4
Powierzchnia typowego piętra 1 100 m2
Liczba miejsc parkingowych naziemnych 0
Liczba miejsc parkingowych podziemnych 1600
Certyfikat Ekologiczny BREEAM - EXCELLENT
Wsp. miejsc parkingowych 1 miejsce na 90 m2 powierzchni

Standard wykończeń

żaluzje wewnętrzne
tryskacze
podwójne zasilanie
kontrola dostępu
okablowanie telefoniczne
okablowanie komputerowe
okablowanie elektryczne
centrala telefoniczna
klimatyzacja
czujniki dymu i ciepła
podnoszone podłogi
podwieszane sufity
wykładziny
otwierane okna
łącze światłowodowe
ścianki działowe
BMS

Udogodnienia

kawiarnia
bankomat
paczkomat
parking dla gości
parking dla rowerów
myjnia samochodowa
co-work
przedszkole
pralnia
supermarket
siłownia / fitness
kantyna / restauracje
centrum konferencyjne
centrum medyczne
parki / tereny zielone
hotel w okolicy

Dostępne powierzchnie

Skontaktuj się z nami

Plan typowego piętra

Nie masz czasu szukać? Skontaktuj się z nami

Oblicz łączne koszty wynajmu

Biorąc pod uwagę liczbę pracowników oraz aranżację stanowisk pracy

occupiermetrics.com