Rodzaj nieruchomości: biuro Rodzaj oferty: wynajem
/images/galeria/353/biuro-kopernik_office_building_c-1org.jpg
widok mapy
widok ulicy

Zapytaj o tę nieruchomość
Zadzwoń 48 22 820 20 20

lokalizacja nieruchomości

Warszawa, Aleje Jerozolimskie 176

Koszty

Czynsz 13.50 - 13.50 € / m2 / mc
Eksploatacja 24.50 - 26.50 zł / m2 / mc

Wyjściowe warunki najmu

Czynsz wyjściowy za pow. biurową 13.50 - 13.50 € / m2
Koszty eksploatacyjne 24.50 - 26.50 zł / m2
Koszt parkingu naziemnego do uzgodnienia
Koszt parkingu podziemnego 60.00 € / miejsce

Dostępne powierzchnie

Całkowita dostępna pow. biurowa 526 m2
Minimalna biurowa pow. najmu 350 m2
Minimalny okres najmu 24 miesięcy
Budynkowy współczynnik pow. wspólnych 4.84 - 6.54 %

Informacje o budynku

Status budynku istniejący
Całkowita pow. biurowa netto 3 517 m2
Data zakończenia budowy 2006
Liczba pięter naziemnych 6 (łącznie z parterem)
Liczba pięter podziemnych 2
Powierzchnia typowego piętra 750 m2
Liczba miejsc parkingowych naziemnych 158
Liczba miejsc parkingowych podziemnych 607
Certyfikat Ekologiczny BREEAM - Very Good
Wsp. miejsc parkingowych 1 miejsce na 25 m2 powierzchni

Standard wykończeń

żaluzje wewnętrzne
tryskacze
podwójne zasilanie
kontrola dostępu
okablowanie telefoniczne
okablowanie komputerowe
okablowanie elektryczne
centrala telefoniczna
klimatyzacja
czujniki dymu i ciepła
podnoszone podłogi
podwieszane sufity
wykładziny
otwierane okna
łącze światłowodowe
ścianki działowe
BMS

Dostępne powierzchnie

Skontaktuj się z nami

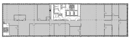
Plan typowego piętra

Nie masz czasu szukać? Skontaktuj się z nami

Oblicz łączne koszty wynajmu

Biorąc pod uwagę liczbę pracowników oraz aranżację stanowisk pracy

occupiermetrics.com